HOME
·Î±×ÀÎ
ȸ¿ø°¡ÀÔ
CONTACT US
Toggle navigation
·Î±×ÀÎ
ȸ¿ø°¡ÀÔ
ȸ»ç¼Ò°³
ȸ»ç¼Ò°³
Á¦Ç°¼Ò°³
Á¦Ç°¼Ò°³
½Ã°ø»ç·Ê
½Ã°ø»ç·Ê
Ä¿¹Â´ÏƼ
°øÁö»çÇ×
FAQ
°ßÀû¼¾ÅÍ
¿Â¶óÀΰßÀû¿äû
CUSTOMER
°ßÀû¼¾ÅÍ
°ßÀû¼¾ÅÍ
- °ßÀû¼¾ÅÍ
¿Â¶óÀÎ °ßÀû¿äû
ÇöÀå / ÀüȹøÈ£ / e-mail / Â÷°íÀÚµ¿¹® Á¾·ù ¹× µðÀÚÀÎ/ Ä¡¼ö¸¦ ±âÀçÇØ ÁÖ¼¼¿ä. ¼º½É¼ºÀDz¯ ´äÇØµå¸®°Ú½À´Ï´Ù.
Á¶È¸¼ö
135
Á¦¸ñ
°ßÀû¹®ÀÇÇÕ´Ï´Ù.
ÀÛ¼ºÀÏ
2025-10-23
¼ºÇÔ/ȸ»ç¸í
(ÁÖ)¿¡ÇÁ¼¥
ÇöÀå
¿µÁÖ½Ã
ÀüȹøÈ£
010-6654-6766
À̸ÞÀÏ
gyubo3989@naver.com
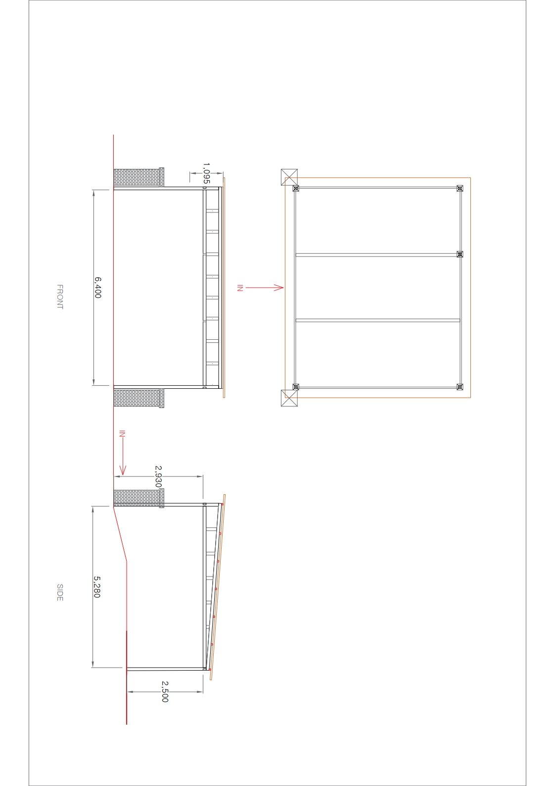
Â÷°íÀÚµ¿¹® Á¾·ù ¹× µðÀÚÀÎ
¿À¹öÇìÆ®- ¾Ë·ç¹Ì´½ 䱤â
Ä¡¼ö
ÀÔ±¸6,400(°¡·Î)*2,930.(Â÷°íÁö ¾ÈÂÊ 430mm ³ô¾Æ 2,500mm)
¾È³çÇϼ¼¿ä^^. Á÷Á¢ ¼³Ä¡ÇÏ·Á°í ÇÕ´Ï´Ù.
¸î³âÀü¿¡ Ÿ»ç Á¦Ç° ¼³Ä¡ º¸Á¶Çغ»Àû ÀÖ½À´Ï´Ù.
ÁÂ¿ì ±âµÕ ¾ÈÂÊÀ¸·Î 200mmÀÌ»ó ¿©À¯°¡ ÀÖÁö¸¸, 100mm°¢ÆÄÀÌÇÁ¿¡ ¸ÂÃ߸é ÁÁÀ»°Å °°°í, º¸° ±âµÕ ÇÁ·¹ÀÓ ÇÊ¿ä ¾øÀ»°Å °°½À´Ï´Ù.